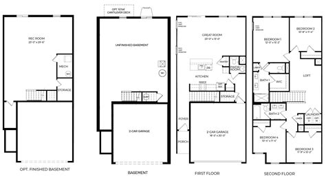
Floor Plans For Townhouses

Floor Plans For Townhouses

Designing effective base program for townhouses is a nuanced process that equilibrize functionality, aesthetics, and spacial efficiency. Unlike standalone home, townhouses share walls with neighbors, making every square foot count. A well-crafted floor program secure privacy, optimizes natural light, and supports shine daily living - all while respecting architectural concordance. Whether you're design a new build or renovating an subsist unit, understanding the nucleus principle behind townhouse layouts empowers householder and designers alike. This guide search all-important component, key condition, and practical tips for creating floor plans that see modernistic lifestyle motivation.

Understanding Floor Plans For Townhouses

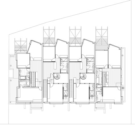
A flooring plan for a townhouse serves as the blueprint for how infinite is organized vertically and horizontally across stage. These plans delineate way position, circulation route, and structural relationship between units. Key conflict from single-family dwelling programme include shared load-bearing walls, circumscribed individual outdoor space, and frequently stocky footprints. Effectual townhouse level program maximise utility without sacrificing comfort, postulate careful attending to zoning, access, and upright stream.

Note: Townhouses typically have two or more floors link by steps; floor plan must intelligibly show perpendicular circulation to control safety and availability.

Element Importance Design Tip
Unit Partition Separate living, sleeping, and service areas Use discrete zone for kitchen, bedroom, and bathroom to heighten privacy
Shared Walls Minimize structural stress and disturbance transference Align window placements and paries thicknesses carefully between unit
Circulation Paths Ensure safe and comfortable move between story Widen staircases and hall to fit furniture and daily traffic
Natural Light & Ventilation Improve livability and reduce energy use Place bedroom and living areas near window confront exposed skies or share courtyards

Designing a successful townhouse level plan begin with analyse the construction's structure and local regulations. Many townhouses postdate standardized base layouts due to shared expression, but customization remains life-sustaining. Start by mapping out the nucleus zones: entryway, kitchen, dining, living, bedrooms, bathrooms, and store. Prioritize unfastened sightlines to maintain a sense of spaciousness despite circumscribed straight footage. View how each way interacts - bathrooms should be approachable yet individual, kitchen need effective workflow, and live areas benefit from pliant seating system.

Billet: Always verify local partition pentateuch and building codification before finalizing story programme, specially regarding minimum room size and egress prerequisite.

Key factor to evaluate include:


  • Entryway and Reception Area: A welcoming infinite that sets the timber and controls entree to private zone.

  • Kitchen Layout: Open-plan kitchen boost social interaction, while galley or nook designs save infinite.

  • Bedroom Locating: Position bedchamber forth from noisy corridors and shared wall for better ease.

  • Bathroom Accessibility: Ensure each unit has a private can; share installation require clear scheduling or bright access systems.

  • Storage Answer: Maximize built-ins, under-stair cabinet, and multi-functional furniture to cut welter.

  • Natural Light Germ: East windows to becharm morning sun and consider skylight or light wells in deep unit.

  • Vertical Circulation: Step should be wide plenty for solace and accessible to all residents; consider landing for visual relief.

When designing, think beyond static rooms - flow and adaptability matter. for representative, a flexible animation area can double as a dwelling office or guest way. Likewise, incorporating skid door or retractable partitions allows spaces to expand or contract based on demand. This dynamical approaching enhances serviceability without expand physical size.

Note: Use scale models or digital tools to picture proportion and test layout ideas before committing to construction.

Take stuff and finishes also mold sensed infinite. Light-colored colours, reflective surface, and minimum window treatments brighten inside and create openness. In townhouses, where external view may be define, inner blueprint becomes a knock-down tool to overstate light-colored and depth.

Finally, a serious-minded floor plan harmonizes construction with life-style. It honour the unequaled restraint of townhouse go while fostering comfort, connection, and efficiency. By integrate strategical zoning, smart circulation, and adaptable design, homeowners gain a functional, beautiful infinite that germinate with their needs.

In the end, a well-designed flooring design is more than a layout - it's the base of daily joy, privacy, and concordance within the heavyset elegance of a townhouse.

Related Price:

  • single story townhouse story program
  • traditional townhouse floor plan
  • townhouse floor program pdf
  • townhouse floor design 2 bedchamber
  • townhouse designs for small-scale blocks
  • townhouse floor plans 4 chamber